Contact
Work
Contact
Work
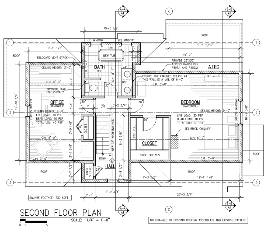
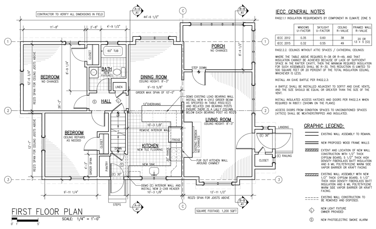
Attic Conversion to Master Bedroom Suite with Bath
↑
Back to Top